︎
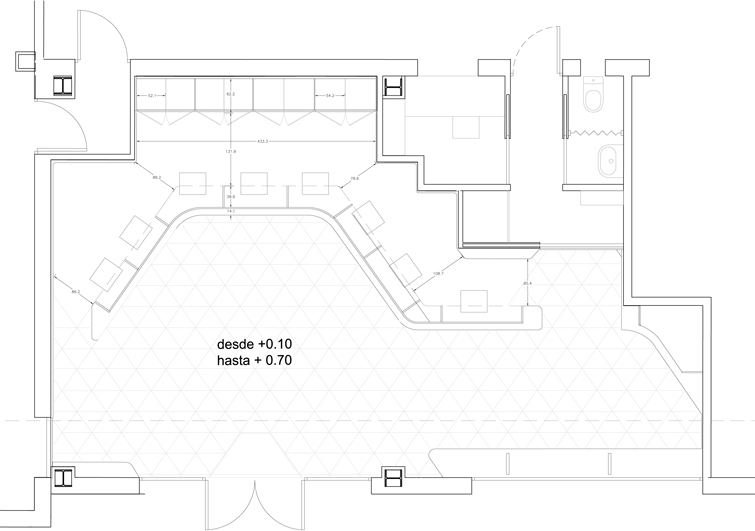
2015: TOURISM INFORMATION CENTRE LA ROCA VILLAGE
Concept desing for the new TIC at La Roca Village